Offers Over £625,000

5 bed detached house for sale in Liberton

Shaldon, 107 Captains Road, Liberton, Edinburgh, EH17 8DT
5
3
2
ESPC Chartered Firm
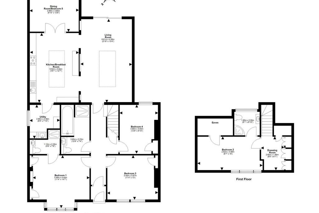
Total Floor Area 164m²
Council Tax Band E
Energy Rating C
Tenure Freehold
Key features
  • Bungalow refurbished to a high specification
  • Flexible accommodation 2/3 public rooms
  • 4/5 bedrooms, 3 bathrooms
  • Stylish kitchen with all mod cons & utility room
  • Secure parking for 4 cars

Property highlight: Nothing in this property hasn't been replaced/improved and will make a fabulous home for any family.

Welcome to Shaldon at 107 Captains Road. Seldom will an opportunity arise to acquire such a stylish bungalow which has been fully refurbished including a new roof, complete re-wiring, re-plumbing, new double glazing and set within 3 miles of Edinburgh city centre. The property is in pristine condition and offers flexible accommodation and can work well as a 4 or 5 bed property, perfect for any family. The property is set over 2 levels and benefits from a south facing rear garden, mature landscaping with power and outdoor tap. The outdoor space has decking and barbecue area, perfect for outdoor entertaining. To the front there is a grassed area and a monobloc driveway which can comfortably accommodate 4 cars. • Bright south west facing lounge benefiting from 5.1 surround sound and patio doorsgiving access to the rear garden. • 5 bedrooms with 2 en-suites and a large family bathroom with shower and bath. • Stunning modern dining kitchen with breakfast bar and Neff integrated appliances,access to dining room which could also become Bedroom 5. • There are self cleaning glass cupolas in the lounge and kitchen giving a beautiful light tothese rooms. New slate roof and refurbished dormers. • Exterior lighting, front and rear. • Heating system - Vaillant Ecotec Pro 28 combi boiler. • Dressing area with Bedroom 2 and good storage within eaves Liberton is a popular area in the south of the city which is mainly residential.There are a good range of golf clubs and leisure facilities in the vicinity, includingGracemount Leisure Centre & Liberton Golf Club. There are local shops nearby,including an Aldi & Morrisons. Further amenities are available in Cameron TollShopping Centre or Straiton Retail Park which provide a wide range ofsupermarkets and other retail outlets. The area has reputable state schools atprimary & secondary level and the property is in the catchment for Liberton Primary& Liberton High Schools, with excellent transport links to George Heriot's, GeorgeWatsons & ESMS available nearby. The property is also ideally located for EdinburghUniversity and the Royal Infirmary. Regular bus services run along the main roadwith convenient travel links to the city centre. There is also very easy access ontothe city bypass and the motorway network beyond.

Read further
View this property
By Appointment call Sylvia 07590 041169
Book a Viewing

Liberton, Edinburgh South at a glance*

  • Average selling price

    £344,122

  • Median time to sell

    22 days

  • Average % of Home Report achieved

    101.9%

  • Most popular property type

    3 bedroom house

To find out more about the local market, contact McDougall McQueen today.
* Figures are based on properties marketed and sold through ESPC. Home Report valuations relate to properties where the Home Report was available on espc.com. Figures relate to the 3 month period ending on 30/09/2025

What will my monthly repayments be?

Repayment: £0
Interest only: £0

How much can I borrow?

You May Borrow: £0
* School catchment data is provided for information purposes only and ESPC UK Ltd does not accept any responsibility for the accuracy or completeness of the data. You should always contact the local authority responsible for the provision of education in a property's location, and more information on particular school catchment areas can be found via the links here.