Offers Over £625,000

5 bed detached house for sale in Dunfermline

Hillcrest House 54 Carnock Road, Dunfermline, KY12 9NT
5
1
3
Council Tax Band G
Energy Rating D
Tenure Freehold

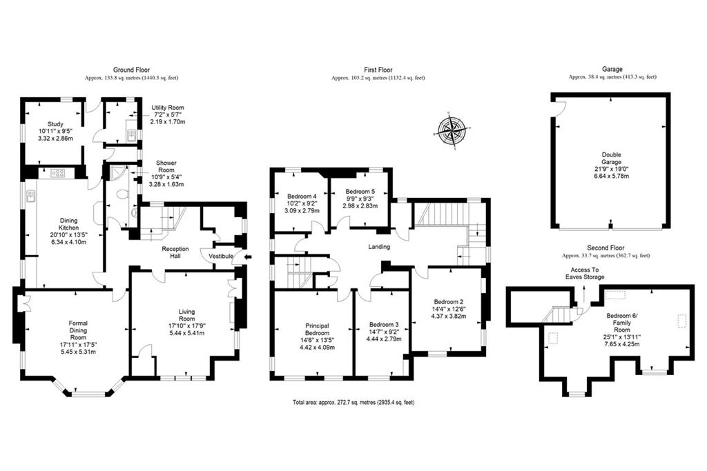
Rarely available, a detached stone built villa dating back to around 1930, set within most impressive garden grounds. Accommodation comprises: entrance vestibule, reception hallway, cloak room, formal lounge, bay windowed dining room, dining kitchen, shower room, inner hallway, utility room, family room, first floor landing (large window at half height), four double bedrooms, space for family bathroom and fixed staircase to large attic bedroom. The floor area is approximately 273m². The property boasts many features including a flexible layout, sold timber flooring, quality ceramic floor tiling, superb southerly views, excellent storage and an idyllic elevated position. The beautiful gardens boast an extensive well manicured lawn, many flower beds, shrubs and mature trees, drying green, patio areas and a south facing aspect to front. The double garage and long tarmac driveway leading up to and around the house, provides ample off street parking for several vehicles. Viewing is highly recommended to fully appreciate this superb property and its most impressive setting. Carnock Road is situated on the outskirts of Dunfermline off the A907. Dunfermline City Centre and railway station are within easy reach, as are excellent local amenities, primary and secondary schooling and Leisure facilities. There is easy access to the M90 Motorway for travel both north and south and an excellent bus service operates in the immediate vicinity.

Read further
View this property
Tel: 01383 287895
Book a Viewing

Dunfermline, Kinross & West Fife at a glance*

  • Average selling price

    £244,360

  • Median time to sell

    14 days

  • Average % of Home Report achieved

    102.9%

  • Most popular property type

    4 bedroom house

To find out more about the local market, contact Stevenson & Marshall today.
* Figures are based on properties marketed and sold through ESPC. Home Report valuations relate to properties where the Home Report was available on espc.com. Figures relate to the 3 month period ending on 30/09/2025

What will my monthly repayments be?

Repayment: £0
Interest only: £0

How much can I borrow?

You May Borrow: £0
* School catchment data is provided for information purposes only and ESPC UK Ltd does not accept any responsibility for the accuracy or completeness of the data. You should always contact the local authority responsible for the provision of education in a property's location, and more information on particular school catchment areas can be found via the links here.