Offers Over £260,000

1 bed second floor flat for sale in Willowbrae

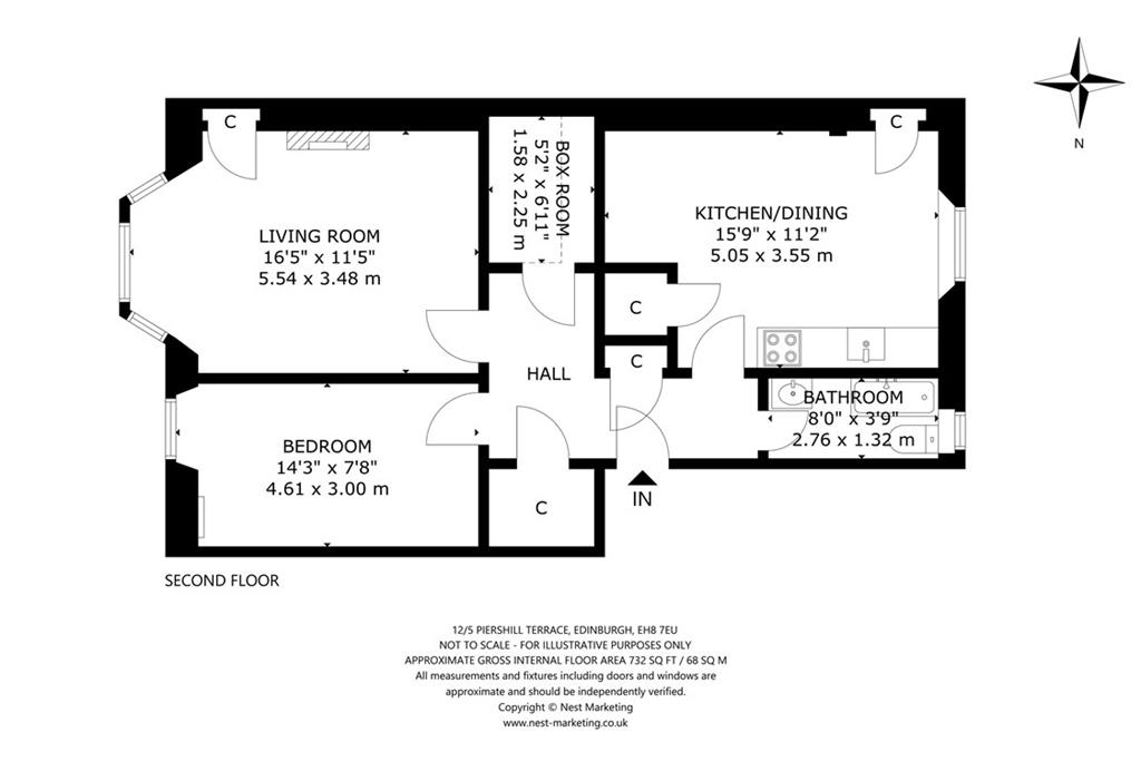
2F1, 12 Piershill Terrace, Edinburgh, EH8 7EU
1
1
1
ESPC Chartered Firm
Total Floor Area 70m²
Council Tax Band C
Energy Rating C
Tenure Freehold

Set on the second floor of an attractive traditional tenement in the highly desirable suburb of Willowbrae, this well-presented flat offers the perfect balance of period charm and modern convenience. The property is beautifully proportioned throughout, with generous rooms that are filled with natural light, creating a bright and welcoming atmosphere. The accommodation begins with a wide reception hallway, providing an inviting introduction to the home and offering excellent storage. To the front, the spacious living room, bathed in morning sunlight, forms the heart of the property. Enhanced by tall ceilings and a large window, this elegant space offers ample room for comfortable seating, dining, and entertaining. Its scale and layout make it highly versatile, lending itself equally well to quiet evenings at home or lively gatherings with friends and family. At the rear, the bright dining kitchen, basking in afternoon light, provides the ideal setting for both everyday living and more formal occasions. Well-planned to maximise space and function, it offers a stylish yet practical environment for cooking and dining, with plenty of room for a table and chairs. This sociable hub of the home will particularly appeal to those who enjoy hosting and sharing meals. The double bedroom is equally impressive, offering a restful and peaceful retreat with excellent proportions for bedroom furnishings. In addition to the main accommodation, the property also benefits from a versatile boxroom. Cleverly designed, it features a stylish mezzanine-level bed with a dedicated study or work area beneath, maximising the use of space and creating a highly practical multi-functional room. This unique layout makes it ideal as a home office, guest room, or student study, offering valuable flexibility to suit a variety of lifestyles. Completing the accommodation is a bathroom fitted with a three-piece suite, ensuring convenience and comfort. Externally, the property benefits from access to a neatly maintained shared garden, providing a charming green space to relax outdoors, enjoy fresh air, or even grow a few plants. To the front, the area offers unrestricted on-street parking, adding to the practicality of everyday life. With its spacious interiors, characterful features, and sought-after location, this appealing property will attract a wide range of buyers — from first-time purchasers and professionals to downsizers and investors — all seeking a stylish home in a well-connected Edinburgh suburb.

Read further
View this property
Please call Linda on 07828 468308 to arrange a suitable time.
Book a Viewing

Willowbrae, Edinburgh East at a glance*

  • Average selling price

    £343,260

  • Median time to sell

    26 days

  • Average % of Home Report achieved

    104.0%

  • Most popular property type

    2 bedroom flat

To find out more about the local market, contact RD Legal today.
* Figures are based on properties marketed and sold through ESPC. Home Report valuations relate to properties where the Home Report was available on espc.com. Figures relate to the 6 month period ending on 30/09/2025

What will my monthly repayments be?

Repayment: £0
Interest only: £0

How much can I borrow?

You May Borrow: £0
* School catchment data is provided for information purposes only and ESPC UK Ltd does not accept any responsibility for the accuracy or completeness of the data. You should always contact the local authority responsible for the provision of education in a property's location, and more information on particular school catchment areas can be found via the links here.