Print this page

ESPC

Bruntsfield Gardens, Bruntsfield, Edinburgh, EH10 4DX

£1,600 per month | 2 Bed Flat

Ref: CL580160

Description

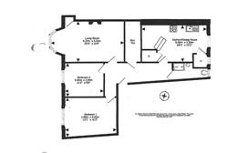
Available immediately. *PROPERYT VIDEO AVAILABLE* Spacious two bedroom first floor flat located in the heart of the bustling Brunstfield area of the city, with excellent local amenities and 5 minutes walk from the open green space of Brunstfield Links. Accommodation comprises large sitting room, dining kitchen, double bedroom, sink bedroom, box room / study and shower room, all with original sanded floorboards. The property has gas central heating, double glazing , access to shared garden and parking is by local residents permit. Council tax band E EPC rating C Landlord registration 170965/230/16102 LARN 1904080 EPC rating: C. Landlord Registration Number: 170965/230/16102. Letting Agent Registration Number: 1904080.. Deposit is £1800.

Viewing times

Contact agent to arrange a viewing.

View location on a map

Marketed by

ESPC Lettings
27 George Street, Edinburgh, EH2 2PA

Tel: 0131 202 5530
Web: https://espc.com